PDF문서한국전통문화연구12_5_오동선_김태민_위명환_이윤혜_景福宮 興福殿 圈域의 發掘調査結果와 (北闕圖形)-(景福宮配置圖)의 比較-檢討.pdf

닫기

background image

◀ 오동선 국립문화재연구소 학예연구사

(

)

김 태민 ? 위명 환 ? 이윤혜 국립문화재연구소 연구원

(

)

05

景福宮 興福殿 圈域

發掘調査結果

北闕圖形

』 ?

景福宮配置圖

比較

? 檢討

머리말

.

경복궁 흥복전 권역 발굴조사 결과

.

조사대상 지역

1.

층위

2.

구지형

3.

유구 조영과 훼철과정

4.

조사유구

5.

출토유물

6.

조사결과와 북궐도형

.

? 경복궁배치도 의 비교

? 검토

흥복전 권역의 축조과정과 건물의 배치

1.

건물의 규모와 세부형태

2.

맺음말

.

05.

景福宮 興福殿 圈域

發掘調査結果

北闕圖形

』 ?

景福宮配置圖

比較

? 檢討




background image



국문요약

본고는 경복궁 흥복전 권역 발굴조사결과와 해당 권역의 사료와 도설 북궐도형

(『

』 ? 경복

궁배치도 을 비교

)

? 검토하여 향후 해당 권역 건물의 정비 ? 복원시 고려해야할 점들을 제

시하는데 목적이 있다 경복궁 흥복전 권역은 침전권역과 향원정 사이의 공간으로 경복궁

.

의 중심 축선상에 위치한다 관련 기사는 고종연간 흥선대원군의 경복궁 중건

년 이

.

(1867 )

후 부터 조선왕조실록

승정원일기

일성록 등에서 확인되는데 주로 왕의 편전으로

,

,

,

』 『

』 『

서 외국사신 접견 신하 접견 경연 등의 장소로 이용되었다

,

,

.

조사결과 일제강점기 왜식정원 조성으로 인해 크게 파괴된 흥복전 주전각을 비롯하

여 사료와 도설에 설명된 건물 대부분의 기초시설이 확인되었다 조사결과와 사료

.

? 도설을

비교했을 때 북궐도형 에

로 표기

今無

된 건물의 경우 북궐도형 보다는 경복궁배치

도 와 더 유사하고 나머지 건물은 북궐도형과 유사한 양상으로 확인된다 이외 흥복전 권

,

.

역 복원을 위한 건물 내외부와 건물 간의 해발고도 차이 구지형과 이와 관련된 세부적인

,

축조과정 지하에 시설된 암거형 배수로와 배수 체계 건물 내부의 난방시설 고래 아궁이

,

,

(

,

),

건물 외부의 굴뚝과 계단기초시설 담장유구가 확인되었다

,

.

1

주제어

경복궁 흥복전 북궐도형 경복궁배치도 기초시설 암거형 배수로

,

,

,

,

*

오동선 국립문화재연구소 학예연구사

:

,

김태민 ? 위명환 ? 이윤혜 국립문화재연구소 연구원

:

이 글은

년 국립문화재연구소의 연구과제 조선궁성기초학술연구

의 지

2012-2013

(NRICH-1305-A02F)

원으로 작성된 것임을 밝혀둔다.


background image

05.

景福宮 興福殿 圈域

發掘調査結果

北闕圖形

』 ?

景福宮配置圖

比較

? 檢討



머 리 말

.

경복궁 발굴조사는 문화재청의 경복궁 복원사업에 따른 사전발굴조사로

1990

부터 현재까지 총

개 권역에 대한 발굴조사가 진행되었다 표

문화재청의

10

(<

1>).

경복궁 정비 ? 복원 계획은

년 광화문권역 발굴조사를 끝으로 경복궁 차 정

2010

1

비 ? 복원사업이 마무리되었고

년 흥복전 주변지역 발굴조사를 시작으로

, 2012

2

차 정비 ? 복원사업이 진행 중이다.

경복궁 발굴조사의 특징은 조사지역에 위치한 건물의 다양한 사료들이 잔존

한다는 점이다 예를 들어 조선왕조실록

승정원일기

일성록 등에 해당 전

.

,

,

』 『

』 『

각에서 어떤 일이 있었는지 연대별로 확인이 가능하다 또한 궁궐지 와 북궐도

.

경복궁 배치도 와 같은 도설에는 건물의 배치와 규모 각 칸의 용도 등이

,

,

』 『

표기돼있다 실제 조사에서는 이러한 사료상의 내용뿐만 아니라 지하에 매설된

.

암거형 배수로와 같은 지하시설물 굴뚝기초시설 건물 기초시설의 세부적인 축

,

,

조양상을 통해

년 전 조선 건축기술의 단면을 확인할 수 있다 이외에 담장의

150

.

배치와 실제 확인된 행각과 전각의 위치와 해발높이 칸수와 규모 형태 건물 내

,

,

,

부의 기타 시설물들을 종합해서 실제 복원에 활용하고 있다.

이러한 발굴조사를 통한 고고학적인 조사 결과물은 건물복원을 위한 기초자

료뿐만 아니라 중근세 고고학으로써 당시의 문화복원과 전통건축사적인 측면에

서 매우 중요한 연구자료를 제공해오고 있다.

아래에서는

년에 조사된 경복궁 흥복전 권역의 구체적인 축조과정을

12-13

밝히고 유구의 배치와 규모 ? 형태를 사료 ? 도설과 비교하여 향후 흥복전 권역의

정비 ? 복원을 위한 기초자료를 제시하고자 한다.

연번

연도

조사내용

조사기관

1

1990

경복궁 종합정비 계획 수립

문화재관리국

1991

침전지 발굴조사

국립문화재연구소

2

1994

동궁 지역 발굴조사

국립문화재연구소

3

1994

내사복 지역 발굴조사

국립중앙박물관

1994

경복궁 복원정비기본계획 수립

문화재관리국

4

1996

훈국군영직소지 발굴조사

국립중앙박물관

5

1997~2001

태원전 권역 발굴조사

한국문화재보호재단 외 개 기관

3

6

2002

건청궁 지역 발굴조사

중앙문화재연구원

2002

경복궁 광화문 및 기타권역 복원정비 계획 수립

문화재청

7

2003

녹산 지역 발굴조사

한국건축문화연구소

8

2004~2006

소주방지 흥복전지 함화당

,

,

?

집경당 행각지 발굴조사

국립문화재연구소

경복궁 조사 현황

1.


background image

그림

경복궁 발굴조사현황과 조사지역의 위치

1.



2005

경복궁 광화문 원위치 복원 및 주변정비 기본계획 수립

문화재청

9

2006~2010

광화문 권역 발굴조사

국립문화재연구소

2009

경복궁 정비 복원 기본계획 수립

문화재청

10

2012

흥복전 주변지역 외행각 발굴조사

(

)

국립문화재연구소

2013

흥복전 주변지역 발굴조사

국립문화재연구소


background image

05.

景福宮 興福殿 圈域

發掘調査結果

北闕圖形

』 ?

景福宮配置圖

比較

? 檢討



경 복 궁 흥 복전 권역 발굴 조 사 결 과

.

조사대상 지역

1.

흥복전과 관련한 기록은 조선 전기의 문헌자료나 경복궁 전도에는 보이지 않으

며 고종대의 궁궐지

북궐도형

경복궁배치도

고종실록

일성록 에서

,

,

,

,

,

』 『

』 『

』 『

』 『

확인된다 이러한 사료에서 흥복전 관련기사는 경복궁이 중건된 고종 년

.

2 (1865)

부터 고종

사이에 확인되며 주로 내각회의 경연 외국공사 접견 등

25 (1888)

,

,

왕의 편전으로 이용되었음을 알 수 있다.

년 일제 강점기에는 창덕궁 화재로 많은 건물이 소실되자 이를 중건하

1917

기 위해 흥복전을 비롯한 경복궁 내의 여러 전각을 헐어 창덕궁 복구를 위한 부재

로 활용하였다 이로 인해 흥복전의 주요 건물들은 대부분 훼철되었다 이후 흥복

.

.

전 권역에는 왜식정원이 조성되었다가 매립되어 공터로 남아 있던 것을 문화재청

년부터 경복궁 광화문 및 기타권역 복원정비 사업 을 진행하면서 발굴

2002

조사가 실시되었다.

흥복전 권역의 발굴조사는 국립문화재연구소에 의해

년까지 이

2004-2006

루어졌다 조사결과 왜식정원 조성으로 크게 훼손된 흥복전 주 전각의 적심과 이

.

를 둘러싼 북 ? 동 ? 서 행각을 비롯하여 북쪽의 중행각 북행각 광원당 일부 구간

,

,

이 확인되었다 당시 조사에서는 흥복전 서편의 외행각과 중행각 북편의 회광당

.

,

,

그림

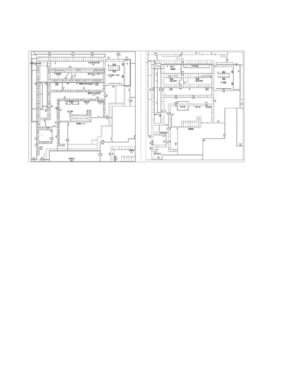
북궐도형과 경복궁배치도상의 조사지역 위치 문화재청

수록 도면 재정사

2.

(

2009

)

좌 북궐도형 상의 조사지역 위치 우 경복궁 배치도상의 조사지역 위치

:

,

:


background image



소주방 등의 일부 구역이 적토장으로 이용되면서 발굴조사가 이루어지지 못했다.

이에

년 문화재청의 경복궁 차 단계 단기 복원 계획 에 맞추어 흥

2012-2013

2

1

복전 권역의 미발굴 지역에 대한 조사가 진행됐다.

흥복전 권역을 구성하는 건물은 앞서 언급한 사료와 도설을 통해 확인할 수

있다 이에 따르면 흥복전은 아미산 북편에 여러 겹의 행각을 갖추고 배치되어 있

.

다 북 동 서쪽을 감싸는

칸 규모의 행각을 기준으로 북쪽으로 가면서 중행각

.

,

,

58

북행각

칸 반

회광당

(24 ),

(34

),

? 광원당

칸 반

소주방

칸 이 차례로 위

(51

),

(61 )

치한다 이 행각들은 각기 동쪽과 서쪽에 남북방향으로

칸 규모의 행각이 연

.

5-6

결되면서 자연스럽게 북 ? 동 ? 서 방향으로 흥복전의 경계를 이루게 된다.

이 중

년도 조사지역은 흥복전의 서편 경계를 이루는 남북방향의 외행

2012

각과 그 동편 행각에 해당된다

궁궐지 에 설명된 흥복전 외행각은 총

칸 규

.

52

모로 남북방향으로 배치되며 남쪽 끝부분은

자 형태의 행각과 이어진다 이

‘ ’

.

자 형태의 행각은 현재 경복궁 관람로 화장실로 이용되고 있다 외행각 동편

‘ ’

,

.

행각은 회광당 ? 광원당의 서쪽 행각 칸

북행

(6 ),

각의 서쪽 행각 칸 중행각 서쪽의 역

자 행

(5 ),

‘ ’

칸 으로 외행각과 나란히 위치한다

(18 )

. 2012

년도 조사에서는 외행각 남쪽 끝 부분

자 형

‘ ’

태의

구간까지 조사가 진행되었고 동편

唱差備

행각은 모든 조사가 완료되었다.

년 조사지역은 흥복전 북편의 동서방향

2013

행각 채 소주방 회광당 광원당 북행각 중행

4 (

,

,

,

각 와 흥복전 동북쪽에 위치한 다경합 권역에 해

)

당한다.

층위

2.

층위는 크게

생토층

정지층

성토층

.

,

.

,

.

,

교란

.

? 복토층으로 구분된다 생토층은

.

39m

지점 현 지표 해발

에서 확인된다 흑갈색

(

41m)

.

점질층으로 약

를 확인했다

층은 해발

40

.

지점부터 개 층이 두께 약

로 확인되

39m

2

30㎝

는데 건물지 축조를 위한 층이다.

층은 해발

지점부터

가량 성

38.7m

1.5m

토된다 성토층은 다시

층 성토층

.

-1 (

),

-2

적심과 기초석렬 내부 채움토

층 건물 내

(

),

-3 (

생토

흑갈색점질

1.

:

.

정지

담갈색사질점토

2.

:

-1, 2.

정지

황적갈색사질점토

3.

:

-2.

성토

암갈색사질점토 기와편

4.

:

-1.

+

충전

암갈색사질점토 암거

5.

:

-1.

(

)

성토

흑갈색사질점토

6.

:

-1.

성토

황갈색사질점토

7.

:

-1.

성토

황색사질토

8.

:

-1.

성토

명황색사질토

9.

:

-1.

충전토

황색사질토 기와편

10.

:

-2.

+

성토

회황색사질점토

11.

:

-3.

후대교란 및 복토

12.

그림

조사지역의 층위

3.


background image

05.

景福宮 興福殿 圈域

發掘調査結果

北闕圖形

』 ?

景福宮配置圖

比較

? 檢討



외부 성토층 으로 나뉜다

층은 기와 부스러기편이 다량 섞인 개 층이 두께

)

.

-1

2

다량의 모래가 섞인 층이 두께 약

로 확인된다

층은 적심과

30 ,

70

.

-2

기단기초 내부 채움토로

층을 되파고 조성되며 내부에는 할석 기와편 담적

-1

,

,

갈색 사질점토가 섞인 층이 채워져 있다

층은 건물 내

.

-3

? 외부 성토층으로 두

께는

이다 적심과 기단기초 상면에 초석 및 기단석 시설과 동시에 성토

50-70

.

가 이루어지는 층이다.

이러한 층위 양상을 통해 볼 때 흥복전을 비롯한 경복궁 권역의 창건 당시의

지표면은 정지층이 시작되는 해발

지점으로 추정할 수 있다 또한 흥복

38-39m

.

이 이용되던 당시의 건물 외부 생활면은 암거형 배수로 집수구의 해발 높이를 고

려할 때

정도였을 것으로 추정된다 따라서 당시의 생활면은 현 지표의

39-40m

.

해발

을 고려할 때 현재보다 약

가량 아래에 있었던 것으로 보인다

(40-41m)

1m

.

구지형

3.

흥복전 권역의 구지형은 전반적으로 북쪽과 동쪽이 높고 남쪽과 서쪽으로 갈수록

낮아진다 이러한 차이는 북악산의 지맥이 북쪽에서 남쪽으로 이어지고 서쪽에

.

,

는 자연하천이 위치하고 있었기 때문인 것으로 보인다 기존 조사에서 확인된 흥

.

복전 권역 서남쪽의 생토층은 하상퇴적층이 최대 두께 약

로 해발

1m

37-38m

간에서 확인된다 반면 북쪽과 동쪽에서는 황갈색 사질점토의 생토층과 흑색 구

.

지표층이 확인된다 특히 동남쪽의 생토층은 해발

로 서남쪽에 비해

.

41.4m

3- 4m

가량 높다.

유구 조영과 훼철과정

4.

유구 축조과정은 단계로 구분할 수 있으며 세부 내용은 그림

와 같다

6

<

4>

.

유구의 훼철은 교란양상을 통해 확인할 수 있다 조사지역의 교란은 크게 두

.

시기로 구분된다 첫 번째 교란은 경복궁 훼철 당시의 교란 재퇴적층 으로 폐기

.

(

)

동시성이 인정된다 두 번째 교란은 일제 강점기와 그 이후 시기 근현대 각종 시

.

(

)

설물로 인한 교란으로 매우 불규칙하게 이루어진다.

경복궁 훼철로 인한 재퇴적은 건물의 기단석과 초석 등이 의도적으로 뽑혀 나가

면서 그 빈공간으로 주변의 기와 사고석 등의 건축 부재가 쓸려 들어와 형성된

,

다 이를 통해 볼 때 경복궁의 훼철은 경복궁 건물 외부를 둘러싼 기단기초 상부

.

의 기단석

건물 상부의 기와 기둥 벽체

초석과 초석 받침석의 순서로 이루

,

,

어진다는 것을 알 수 있다.


background image



조사유구

5.

조사는 북궐도형 과 경복궁 배치도 와 현재 건물배치를 참고하여 동서 80m,

남북

의 조사범위에

로 격자 구획하여 조사를 진행했다 초석을 비

40m

20×20m

.

롯한 초석 받침석 등 건물 기초시설의 잔존상태가 양호한 건물은 본래 형태를 최

대한 유지하면서 조사를 진행했다.

조사결과 북궐도형 과 경복궁 배치도 에 표기된 모든 행각의 내부시설과

기초시설 적심 기단기초 벽체 아궁이 고래 을 비롯하여 외부시설 암거형 배수

(

,

,

,

,

)

(

로 담장 문지 을 확인했다

,

,

)

.

그림

유구의 내부 축조와 축조

4.

? 훼철과정 모식도

사진

흥복전 권역 조사 후 전체 전경 좌

년 우

1.

(

: 2013 ,

: 2012 )


background image

05.

景福宮 興福殿 圈域

發掘調査結果

北闕圖形

』 ?

景福宮配置圖

比較

? 檢討



흥복전

1)

(

)

興福殿 1

본채

흥복전은 정면 칸 측면 칸 동편 배면의 칸으로 이루어져 총

칸 규모이며

9 ,

3 ,

4

40

평면은 역

자 형태이다 북궐도형 에 표기된 각 칸의 용도와 배치를 살펴보면

‘ ’

.

흥복전 동서측에

가 각 칸씩 칸 그 안쪽으로

이 각 칸씩 칸 중앙에는

2

4 ,

2

4 ,

칸 동측 배면에는

칸이 배치된다

3 ,

4

.

廳廚

조사결과 일제강점기에 조성된 왜식정원으로 인해 건물 기초시설은 거의 남

아있지 않고 모서리 부분의 초석 받침시설만 확인된다 주칸거리는

.

2.73×8.67m

이다 적심은 흥복전 건물 전체 구간에 시설되는데 할석과 기와 편을

두께

.

0.3m

로 깔고 강회다짐으로

정도 성토 후 초석받침을 시설했다

0.3m

.

주변행각

흥복전은 북 ? 동 ? 서쪽으로 행각이 위치하면서 흥복전을 감싸고 있다 북행각과

.

동행각은 전체 범위에 대한 조사가 완료되었지만 서행각의 남측

칸은 현재 관

10

람로와 휴게시설로 이용되어 조사가 불가했다.

북행각

북행각은 흥복전 본채 북쪽에 위치하는 동서방향 행각으로 궁궐지 에는 총 22

칸으로 설명돼 있다 북궐도형 에는 서편의 광순문과 담장 동편의 상화문을 기

.

,

준으로 서쪽부터 계형당 태지당 홍안당이 차례로 위치하는 것으로 표기돼 있다

,

,

.

각 칸의 용도와 배치를 살펴보면 계형당은 광순문 동측으로

4 ,

1 ,

1

1

국립문화재연구소,

, 2008.

景福宮 興福殿址 發掘調査報告書

사진

년 흥복전 권역 조사 후 전체 전경과 동행각 내부 시설

2. 2006


background image



칸이 배치돼 있다 태지당은 계형당 동측 담장과 접하는 지점부터

.

5 ,

3

이 배치돼 있다 홍안당은 상화문 동측에

칸이 배치돼 있다

.

2 ,

1

.

조사결과 왜식정원에 의해 크게 훼손되어 일부 기초시설만 확인된다 북행각

.

북측은 장대석 시설을 위한 기단기초가 일부 확인되고 내부에서는 온돌과 관련한

고래 아궁이 개자리 시설이 확인된다 주칸거리는

로 일부 구간에

,

,

.

2.45×2.45m

서 확인이 가능하지만 북궐도형 에 표기된 담장을 비롯한 기타 기초시설은 파괴

되어 확인할 수 없다.

동행각

동행각은 흥복전 본채 동쪽에 위치하는 남북방향 행각으로 궁궐지 에는 총 칸

8

으로 설명돼 있다 북궐도형 에 표기된 각 칸의 용도와 배치를 살펴보면

.

4 ,

칸으로 전체적으로

이 하나의 조합으로 배치돼 있다 태지당은

2 ,

2

.

房廚廳

계형당 동측 담장과 접하는 지점부터

칸이 배치돼 있다

5 ,

3

.

조사결과 왜식정원에 의해 크게 훼손되어 북쪽에 위치한 일부 기초시설만 확

인된다 동행각 동측의 장대석 시설을 위한 기단기초가 확인되고 서측은 단일 적

.

심시설이 확인된다 주칸거리는

이다

.

2.45×2.45m

.

서행각

서행각은 흥복전 본채 서쪽에 위치하는 남북방향 행각으로 궁궐지 에는 총 24

칸으로 설명돼 있다 북궐도형 에 표기된 각 칸의 용도와 배치를 살펴보면

.

13

칸으로 표기돼 있다 전체적으로 적경문 선의문 수다문을 기준

,

5 ,

3

.

,

,

으로

가 연달아 배치되는데 다른 행각과 달리

이 측면에 배치되고 대부분

房廚

으로 구성돼 있는 것이 특징이다.

조사결과 왜식정원 바깥쪽에 위치하여 다른 행각에 비해 상대적으로 양호한

상태로 확인되지만 남측은 현재 관람로와 휴게시설로 조사대상에서 제외되었다

,

.

서행각의 서측은 장대석시설을 위한 기단기초가 시설된다 동측의 기초시설은 파

.

괴되어 확인되지 않는다 이외 건물 내

.

? 외부에서는 온돌과 관련한 고래 아궁이

,

,

개자리 굴뚝 기초시설이 확인된다 주칸거리는

이다

,

.

2.45×2.45m

.

소주방

2)

(

)

燒廚房

소주방은 흥복전 권역 최북단의 동서방향 행각과 동서 양쪽 끝부분에 접해있는

남북방향 행각으로 이루어져 있는데 궁궐지에는 총

칸으로 설명돼있다 조사지

61

.

역은 주변여건상 소주방 남측의 기초시설 구간만 포함되었다 이 행각에 대해

.

경복궁 배치도 에는 빈궁 생물방 상궁처소로 이용된 것으로 표기돼 있지만 북

,

궐도형 에는

구간으로 북궐도형 제작 당시에는 사용되지 않았던 것으로

今無


background image

05.

景福宮 興福殿 圈域

發掘調査結果

北闕圖形

』 ?

景福宮配置圖

比較

? 檢討



보인다.

금번 조사 결과 소주방 퇴칸에 해당되는 초석 적심들이 확인되었다 적심은

.

전 ? 후열로 두 개의 초석을 시설하는데 평면형태는 세장방형이며 규모는

,

1.7×

이다 주칸거리는

이며 동서방향으로는 총

이 확인

2.4m

.

2.45×4.5m

,

29 (71m)

된다 초석은 모두 후대 반출되어 초석 받침시설이나 그 하부의 적심 상면만 확인

.

된다 남측 적심 외부로는

가량 이격되어 폭

의 기단기초 시설이 확인된

.

1.1m

1m

다 이밖에 행각 내부에서는 온돌과 벽체시설이 일부 확인되고 남측 외부에서

.

,

는 동서방향과 남북방향 담장 각 기를 비롯하여 암거형 배수로와 집수구가 확

1

인된다.

조사결과 확인된 동서방향 행각의 칸수

칸 와 담장의 위치는 북궐도형

(29 )

보다는 경복궁 배치도 와 더 유사한 양상을 보이며 출토된 유물 중 음식재료였

을 것으로 보이는 조개류를 비롯하여 비녀편

등이 일부 확인되는 것으로 보

( )

아 역시 경복궁 배치도 에 표기된 빈궁생물방 상궁처소의 용도였던 것을 뒷받

,

침해준다.

회광당

과 광원당

3)

(

)

(

)

會光堂

廣元堂

회광당과 광원당은 흥복전의 소주방 남쪽에 위치하는 행각으로 동서방향 행각과

서쪽과 동쪽 끝에 접해있는 남북방향으로 이루어져 있는데

궁궐지 에는 총

,

51

칸 반으로 설명돼 있다 행각 중앙에 위치한 일신문을 기준으로 서쪽 회광당 경

.

(『

사진

소주방 남측 적심 전경

3.

사진

소주방 동편 남북방향 행각

4.

사진

소주방 내 노출 추정 고래

5.

사진

기단석 기초시설의 축조양상

6.


background image



복궁 배치도 에는 빈궁 내소주방 동쪽 광원당 경복궁 배치도 에는 빈궁 외소

),

(

주방 으로 구분된다

)

.

북궐도형 에 표기된 조사구간 내 각 칸의 용도와 배치를 살펴보면 회광당의

경우

칸으로 표기돼 있고 광원당의 경우

4 ,

3 ,

5 ,

1 ,

2

,

6

칸으로 표기돼 있다 전체적으로 건물의 중앙부분에는

,

5 ,

4 ,

7

.

을 배치하고 양쪽에는

가 배치돼있다

,

,

,

.

廚 房 庫

조사결과 동서방향 행각만을 기준으로 했을 때 서쪽 모서리 부분을 포함하여

으로 주칸거리는

이다 남측 적심은 소주방과 마찬가지

24 (58.8m)

2.45×4.5m

.

로 퇴칸의 전후열을 연결하는 세장방형으로 규모는

이다 이중 회광당

1.7×2.4m

.

으로 표기된 구간에서 확인된 적심의 초석 받침은 주변의

로 표기된

구간의 초석 받침의 상면보다

가 낮게 확인된다

0.2m

.

광원당의 경우 전면 주열의 초석 적심석과 후면 주열의 초석 및 초석 받침석,

적심석 그리고 퇴칸의 후열에 해당하는 초석의 받침석 및 적심 잔존 상태가 확인

,

되었는데 특히 퇴칸의 전열 초석 받침석보다 후열의 초석 받침석이 한 단 높게 축

조되어 있었다.

회광당 ? 광원당의 후면 즉 북측면 주열의 초석 적심의 형태는 말각방형으로

,

규모는

이다 특히 광원당 북측면은 총 칸에 걸쳐 초석과 초석사이의

1.6×1.5m

.

4

하단 석재 상단의 벽돌로 구성된 벽체를 확인했다 나머지 구간의 초석은 초석

,

.

받침석이나 그 하부의 적심상면만 확인된다 남

.

? 북측 적심 외부로는

가량

1.1m

사진

회광당 전경

7.

1

사진

회광당 전경

8.

2

사진

회광당 전경과 담장 암거

9.

,

사진

회광당 남측 출토 도기

10.


background image

05.

景福宮 興福殿 圈域

發掘調査結果

北闕圖形

』 ?

景福宮配置圖

比較

? 檢討



이격되어 폭

의 기단기초 시설이 확인된다

1.1m

.

이밖에

으로 표기된 칸에서 온돌의 고래시설 조와 아궁이 시설을 비롯하

5

여 벽체가 일부 확인된다 회광당 구간에서도

로 표기된 지점에서는 재층

.

과 소토가 확인된다 행각 외부 남측 에서는 남북방향 담장 기를 비롯하여 암거

.

(

)

1

형 배수로와 집수구가 확인된다.

출토 유물로는 대형 도기 개체가 회광당 남측 기단기초 외부에서 성토층에

2

박혀있는 상태로 출토되었다.

북행각

4)

(

)

北行閣

북행각은 흥복전의 회광당 ? 광원당 남쪽에 위치한 행각으로 동서방향 행각과 동

서쪽 양 끝에 접해있는 남북방향 행각으로 이루어져 있는데

궁궐지 에는 총

, 『

칸으로 설명돼 있다 이 행각의 용도는 알 수 없지만 북궐도형 에 표기된 북

34.5

.

행각의 출입방향이 북편에 위치한 회광당 ? 광원당과 마주하고 있는 것으로 보아

이들이 하나의 공간을 구성하고 있었던 것으로 보인다

북궐도형 에 표기된 조

. 『

사구간 내 각 칸의 용도와 배치를 살펴보면

8 ,

9 ,

7 ,

6 ,

2

칸으로 표기돼 있다 전체적으로

이 하나의 조합으로 연이어 배치되고 동

.

廚房廳

서방향 행각 양쪽 끝에

를 배치한다.

조사결과 동서방향 행각만을 기준으로 했을 때

으로 주칸거리

24 (58.8m)

이다 남

2.45×3.6m

.

? 북측 양쪽 적심은 모두 단일 적심으로 평면형태는 말각

사진

광원당 전경

11.

사진

광원당 남측 초석 받침시설의 단차

12.

사진

광원당 북측 초석 축조 양상

13.

사진

광원당 북측 초석 축조 양상

14.


background image



방형이며 규모는

이다 적심상면에는 초석 받침석이 확

1.6×1.5m

.

인된다 북측 적심 외부로는

가량 이격되어 폭

의 기단

.

1.3m

0.9m

기초 시설이 확인된다 남측 적심에서

가량 떨어진 지점에는

.

1.4m

동서방향의 석축이 최대 단까지 잔존해 있다 이 석축은 흥복전 권

2

.

역 서편의 외행각부터 이어지면서 흥복전 권역 북쪽과 남쪽의 해발

고도차를 조정하는 역할을 한다 이 석축을 기준으로 북쪽에 위치

.

한 행각 기초시설의 해발이 남쪽의 행각 기초시설보다

가량

0.9m

높게 확인된다.

이밖에 행각 내부 시설로는 동측의

으로 표기된 칸에서 온돌

의 고래시설 조와 아궁이 시설을 비롯하여 벽체가 일부 확인된다

4

.

서측의

로 표기된 지점에서는 재층과 소토가 확인된다 행각

.

외부 남측 에서는 남북방향 담장 기를 비롯하여 암거형 배수로와

(

)

1

집수구 규모

의 행각 부속시설 기가 확인된다

,

2.5×1.8m

2

.

조사결과 전체 칸수

칸 와 담장의 위치 등을 통해 볼 때 경

(27 )

복궁 배치도 보다는 북궐도형 과 더 유사한 양상이다.

출토 유물로는 대형 도기 개체의 저부가 북행각 서편의 부속

1

시설에서 출토되고 동편의 부속시설 외부에서도 개체가 확인된다

1

.

중행각

5)

(

)

中行閣

중행각은 흥복전의 북행각 남쪽에 위치한 행각으로 동서방향 행각

과 서측의 남북방향 행각으로 이루어져 있는데 궁궐지 에는 동서

, 『

방향 행각

칸 서측의 남북방향 행각

칸으로 설명돼있다

24 ,

23

.

북궐도형 에 표기된 조사구간 내 각 칸의 용도별 수량을 살펴

보면

칸으로 표기돼 있다 전체적으

7 ,

14 ,

13 ,

3

.

을 하나의 조합으로 연이어 배치하고 있다 회광당

.

廚房房廳廳

?

광원당 ? 북행각과 달리

가 없다는 점이 특징이다.

조사결과 전체 규모는

으로 주칸거리는

24 (58.8m)

2.45×

이다 남

2.45m

.

? 북측 양쪽 적심은 모두 단일 적심으로 평면형태는

말각방형이며 규모는

이다 적심상면에는 초석 받침시설

1.5×1.4m

.

이 일부 확인된다 남

.

? 북측 적심 외부로는

가량 이격되어 폭

1.1m

의 기단기초 시설이 확인된다 다른 행각에 비해 상대적

0.9-1.1m

.

으로 교란 상태가 심해서 내부시설은 확인되지 않는다.

조사결과 동서방향 행각만을 기준으로 했을 때 확인된 전체 칸

칸 를 통해 볼 때 경복궁 배치도

칸 보다는 북궐도형

(24 )

(23 )

칸 과 더 유사한 양상을 보인다

(24 )

.

사진

북행각 동편 전경

15.

(

)

사진

북행각 내부 고래시설

16.

사진

북행각 남측 석축과 부속시설

17.

사진

석축 뒷채움 시설

18.


background image

05.

景福宮 興福殿 圈域

發掘調査結果

北闕圖形

』 ?

景福宮配置圖

比較

? 檢討



외행각

6)

외행각은 흥복전 권역의 서쪽 경계를 이루는 남북방향 행각과 남쪽

끝에 접해 있는

자 형태의 행각으로 이루어져 있으며 궁궐지

‘ ’

,

에는 총

칸으로 설명돼 있다 현재 화장실로 이용되고 있는 외행

52

.

각 남쪽 수인문을 비롯한 동서방행 행각을 제외하고 북쪽의 소주방

과 접하는 지점까지 조사가 진행되었다.

북궐도형 에 표기된 조사구간 내 각 칸의 용도별 수량을 살펴

보면

칸으로 표

11 ,

21 ,

9 ,

4 ,

5 ,

2

昌差備

기돼 있다 전체적으로 담장과 문을 기준으로

이 하나의 조

.

廚房房廳

합으로 연이어 배치되면서 가운데

이 위치한다.

조사결과 조사구간 내 건물의 전체 규모는

으로 주

31 (76m)

칸거리는

이다 외행각 서측의 기초시설은 장대석을

2.45m×3.6m

.

받치기 위한 기단기초가 시설되고 동축의 기초시설은 평면형태 말

각방형의 적심 규모

이 시설된다 적심상면에는 초석

(

1.6×1.5m)

.

받침시설이 일부 확인된다 외행각 동측의 적심 외부로는

.

1.1m

량 이격되어 폭

의 건물 외곽 경계를 이루는 기단기초 시

0.9-1.1m

설이 확인된다.

이밖에 선보문으로 표기된 칸의 남측에서는 흥복전 권역의 동

서를 가로지르면서 남 북의 해발고도차를 조정하는 석축이 시작

-

-

된다 최대 단까지 잔존해 있으며 뒤채움시설도 일부 확인된다

.

2

,

.

건물 내외부에서는 아궁이와 배연시설을 비롯하여 암거형 배수로

가 확인된다 특히 암거형 배수로는 내부 규모

로 외행

.

0.9m×0.8m

각과 외행각 동편 행각 사이의 지하에 시설되어 흥복전 권역의 하

수를 서편의 개방형 어구로 내보내는 역할을 한다.

조사결과 북쪽 소주방과 접하는 지점부터 창차비가 위치하는

동서방향 행각이 접하는 지점까지 확인된 전체 칸수

칸 를 통해

(31 )

볼 때 경복궁 배치도

칸 보다는 북궐도형

칸 과 더 유사

(32 )

(31 )

한 양상을 보인다 다만

로 표기된 외행각 북측과 소주방이

.

今無

접하는 지점의 구조는 적심의 배치 상태를 볼 때 경복궁 배치도

와 더 유사하다.

다경합

7)

(

)

多慶閤

본채

다경합은 흥복전의 동북쪽에 위치한다 본채

칸 와 북행각 칸

.

(10 )

(8 ),

남행각 칸 으로 구성돼있는데 궁궐지 에는

로 설명돼 있

(7 )

今無

다.

사진

중행각 서편 전경

19.

(

)

사진

중행각 동편 전경

20.

(

)

사진

외행각 암거형 배수로 내부 전경

21.

사진

암거형 배수로 천정석과 상부의 담장

22.


background image



북궐도형 에도

로 표기돼 있지만 승정원일기 와 고종실

今無

록 에는

년 신축 기사와

년 왕자와 사부가 상견례한 장소

1867

1877

로 이용된 기사가 확인된다 이밖에 일성록 에는

년 다경합이

.

1873

화재로 일부 소실되었다는 기사도 확인된다 이후의 기사는 확인되

.

지 않고 궁궐지 가

년경에 작성된 것을 통해 볼 때 다경합의

1890

이용기간은

여년 정도인 것으로 보인다

10-20

.

조사결과 동서 방향 칸 중 동편의 칸 반만 확인되며 나머지

5

3

칸 반은 서편의 관람로 구간 하부에 매설된 지하시설물로 인해 조

1

사가 불가했다 주칸거리는

이다 다경합 내부의 초석은

.

2.45×4.5m

.

모두 반출되어 확인되지 않고 초석 받침시설만 일부 확인된다 남

.

?

북 ? 동측 적심 외부로는

가량 이격되어 폭

의 기단기초

1.2m

1.2m

시설이 있는데 이 기단기초 외부로 북측에 개소

,

2

(1.6×1.5m),

측에 개소

1

(3.1×1.5m)

계단 기초시설이 확인된다

북궐도형

. 『

과 경복궁 배치도 의 건물 구조를 비교해보면 남측 기초의 위치에

서 차이가 있는데 조사결과 경복궁 배치도 와 같이 전면에 퇴칸

,

이 구성되는 평면으로 확인된다.

다경합 동편 화계시설 구간

다경합 동편에는 북궐도형 과 경복궁 배치도 에 각기 화계와 담

장으로 표기돼 있는 시설이 있다 그러나 실제 조사에서는 남북방

.

향의 단 석축 상부로 다량의 암막새와 수막새가 그대로 주저앉은

2

채로 노출되었고 석축 내부에는 석축의 뒤채움 시설과 적심이 확

,

인되었다 적심은 평면형태가 말각방형과 원형이 혼재하며 규모는

.

이다 남북방향 석축과

정도의 간격을 유지하면서 나란

1.8-2m

.

2m

히 위치하는데 교란이 심해서 일부 확인되지 않는 지점을 제외하

,

고 서측 적심

개 동측 적심 개로 총

개의 적심이 확인된다

10 ,

2

12

.

적심간 간격은

로 일반적인 칸 건물의 규모와 동일하

2.45×2.45m

1

다 교란이 심해서 동서 양쪽의 적심이 모두 확인된 지점은 개소에

.

2

불과하다 그러나 북쪽과 남쪽 끝 적심간 간격이

라는 점을 고

.

35m

려하면 조사구간 내에는 동서 양쪽 각

개씩

개의 적심이 있었

15

30

칸 규모였을 것으로 추정된다

14

.

이외에도 추정행랑의 북쪽 첫 번째 칸과 번째 칸 부근에서는

9

서쪽의 다경합으로 연결되는 계단기초시설이 기씩 확인된다 이렇

1

.

게 석축 내부의 적심과 다량의 기와무지 출토양상 문과 계단시설

,

등으로 볼 때 이 시설은 일반적인 화계라기보다는 상부구조를 갖춘

사진

다경합 구간 전체 전경

23.

사진

다경합 동측 기단기초 기단석 받침

24.

사진

추정 행랑 기단석 상부 기와노출

25.

사진

추정행랑 남쪽 구간

26.


background image

05.

景福宮 興福殿 圈域

發掘調査結果

北闕圖形

』 ?

景福宮配置圖

比較

? 檢討



건물 행랑 로 추정된다 특히 북궐도형 과 경복궁 배치도 상에 남쪽과 북쪽

(

)

.

끝에 문이 위치하는 것으로 보아 이 지점은 주변지역과 다경합 ? 흥복전 권역을 연

결시켜주는 주 동선으로 이용된 것으로 보인다.

다경합 북행각과 남행각

다경합의 북행각은 서편의 관람로와 동편의 현대 시설물로 인해 크게 훼손되어

북궐도형

』 ? 경복궁 배치도 와의 직접 비교는 어려운 상황이다 다만 북행각 동

.

측의 담장 연결 지점의 유구 배치를 통해볼 때 경복궁 배치도 와 유사하다.

다경합의 남행각은 현재 해발

의 언덕에 대형 수목이 자라

43m

고 있어 조사

가 불가했고 동측의 기단시설과 담장 서측의 담장만 일부 확인된

,

,

다.

기타유구

8)

암거형 배수로와 집수구

암거형 배수로는 동서방향 기 남북방향 기가 확인된다 동서방향 암거는 소주

3 ,

4

.

방과 회광당 ? 광원당 사이 회광당

,

? 광원당과 북행각 사이 북행각과 중행각 사이

,

에서 각 개씩 확인되며 집수구는 각 암거당

개씩 총 개로 지표에 노출되는

1

1-2

6

집수구 판의 규모는

이다 모두 외행각 구간에 위치한 남북

0.5×0.5m, 0.8×0.8m

.

방향 암거로 연결되어 외행각 서편의 개방형 어구로 입수된다 남북방향 암거는

.

소주방과 회광당 사이에 기 다경합 북쪽으로 연결되는 암거 기가 확인된다

3 ,

1

.

사진

회광당 남측 동서방향 암거

27.

? 집수구

사진

북행각 남측 동서방향 암거

28.

? 집수구

사진

북행각 중행각 연결 담장과 문지

29.

사진

소주방 남측 담장과 문지

30.


background image



담장과 문지

담장과 문지는 소주방과 회광당 광원당 사이에서 동서방향 기 남북방향 기

1 ,

1 ,

자형 담장 기가 확인되다 이외 회광당과 북행각 사이 북행각과 중행각 사

‘ ’

1

.

,

이에 남북방향으로 연결되는 담장과 문지가 각 기씩 확인된다 소주방과 회광당

1

.

? 광원당 사이의 담장 배치는 경복궁 배치도 와 더 유사하며 북행각과 중행각

,

구간의 담장은 북궐도형 과 동일한 양상이다.

담장은 세 가지 종류가 확인되는데 기단기초 상부에 바로 사고석을 쌓아올린

것과 장대석을 올리고 그 상부에 사고석을 올린 것 기단기초 없이 성토와 함께

,

사고석을 쌓아올린 것이 있다.

기타

굴뚝 기초시설은 광원당 동측의 남북방향 행각과 북행각 동측의 남북방향 행각동

쪽 단 기단석에 맞닿아 각 기씩 확인된다 바닥부분만 남아있어 세부구조는 확

1

1

.

인하기 어렵다 규모는

의 정방형으로 내부에는 잡석이 채워져 있다

.

0.55×0.55m

.

사진

소주방 남측 동서방향 담장

31.

사진

소주방 남측

자 형 담장

32.

‘ ’

사진

광원당 동편 남북방향 행각 지점

33.

사진

소주방 동편 남북방향 행각 지점

34.


background image

05.

景福宮 興福殿 圈域

發掘調査結果

北闕圖形

』 ?

景福宮配置圖

比較

? 檢討



출토유물

6.

유물은 대부분 건물이 폐기되면서 상부의 기와와 내부 시설들이 건물 외부로 쓸

려 내려와 형성된 재퇴적층에서 확인된다 일부 시기가 올라가는 유물은 성토층

.

에서 확인되기도 한다 도기류는 대부호 대옹 편 자기류는 분청사기 백자 청화

.

,

,

,

,

백자 왜사기 기와류는 거미문 수자문 용문 봉황문 암수막새 청기와 황기와

,

,

,

,

,

,

,

,

특수기와 인장와 철기류는 문고리 유공방형 철판 숟가락 등이 있다

,

,

,

,

.

사진

출토 기와류 일괄

35.

사진

출토 자기류 일괄

36.


background image



조 사 결과 와

북 궐 도형

.

』 ? 경 복 궁배 치 도 의 비교

? 검 토

조사결과 확인된 흥복전 권역의 유구 배치와 북궐도형

』 ? 경복궁 배치도 를 비

교해 보면 전체적으로

표기구간에 해당하는 소주방 구간과 다경합 권역은

今無

담장의 배치와 건물 칸의 형태를 볼 때 경복궁 배치도 와 유사한 양상으로 확인

된다 반면 이 구간 외의 건물과 담장배치는 북궐도형 과 유사하다

.

.

이외에 북궐도형

』 ? 경복궁 배치도 에는 표기되지 않은 암거형 배수로 동

,

서방향 석축 부속시설 다경합 권역 동편의 추정 행랑시설 등은 발굴조사를 통해

,

,

새롭게 확인된 부분이다.

흥복전 권역의 축조과정과 건물의 배치

1.

흥복전 권역의 조영은 동북쪽이 높고 남서쪽이 낮은 이 일대 구지형의 평탄화 작

업 후 진행된다 구지형의 해발차이가 발생하는 이유는 북악산에서 뻗어내린 지

.

맥이 흥복전 권역의 동북쪽으로 연결되고 남서쪽에는 자연하천이 청계천 쪽으로

,

흘렀기 때문인 것으로 추정된다 평탄화 작업은 남서쪽은 성토를 하고 동북쪽은

.

적당한 지점을 선정하여 석축을 쌓고 석축 내부와 외부를 평탄화하는 방법으로

진행된다 흥복전 권역 내 남쪽과 북쪽의 해발차는 최대 약

로 흥복전 북행각

.

1m

의 남측에 석축을 동서방향으로 시설하여 수평면을 맞추고 있다.

흥복전 권역 동북쪽에 위치하는 다경합 권역의 경우에는 화계 혹은 담장으로

표기된 지점에서 남북방향의 석축시설이 있는데 다경합 동남쪽에 국지적으로 저

평한 구릉이 있었기 때문인 것으로 층위조사 결과 확인되었다.

이러한 구지형의 해발 차이와 평탄화 작업의 결과 흥복전 권역에 위치하는

건물은 동서방향 석축을 기준으로 조성 높이에서 차이가 확인된다 석축의 북쪽

.

에 위치한 소주방 회광당

,

? 광원당 북행각 중행각 외행각의 선보문 북쪽 건물의

,

,

,

외부 생활면은 집수구를 기준으로 해발

건물 내부 생활면은

부근에

40.5m,

41m

조성된다 석축 남쪽에 위치한 중행각 흥복전 본채 외행각의 선보문 남쪽 건물

.

,

,

의 외부 생활면은 집수구를 기준으로

건물 내부 생활면은

부근에

39.6m,

40.3m

조성된다 그림

(<

5>).

수평면이 조성된 대지 위에는 건물 축조를 위한 기초가 시설된다 최초 흥복

.

전 권역의 동 ? 서 경계와 각 건물의 외곽 경계를 이루는 기단기초가 우선 시설되

어 건물의 배치를 확정한다 이후 건물 상부의 하중을 지탱하기 위한 적심을

.

간격으로 시설하고 초석을 올린다 건물 내부에는 채움성토를 하면서 내

2.45m

.

부 시설로 온돌과 아궁이가 함께 축조되고 건물 상부가 시설되면서 건물 축조가

,


background image

05.

景福宮 興福殿 圈域

發掘調査結果

北闕圖形

』 ?

景福宮配置圖

比較

? 檢討



완료된다.

건물의 배치는 전체적으로 외행각과 동서방향 행각의 경우 정남북에서 서쪽

으로

정도 기울어있다 이에 비해 흥복전 동쪽 경계를 이루는 남북방향 행각과

.

중행각은

정도 기울어있는 것으로 확인된다 또한 동쪽경계를 이루는 남북방향

.

행각과 채의 동서방향 행각이 접하는 지점에는 일부 적심의 경우 불규칙한 간격

4

으로 확인되거나 초석 받침의 위치가 적심의 가장자리에 배치되는 등 적심과 기

,

둥의 위치를 일정한 간격으로 맞추는데 어려움이 있었던 것으로 보인다.

건물의 규모와 세부형태

그림

2.

(<

5, 6, 7>)

앞서 언급한 바와 같이 발굴조사 결과

로 표기된 소주방과 다경합 구간이

今無

경복궁배치도 와 유사한 것을 제외하고 나머지 구간은 북궐도형 과 유사하다.

조사결과와 북궐도형

』 ? 경복궁배치도

북궐도형 과 경복궁배치도 상의 차

,

』 『

이가 확인되는 지점은 아래와 같이 모두

개 지점에 해당한다 그림

11

(<

7>).

외행각과 외행각 동편의 행각이 소주방 남측 기초시설과 접하는 지점의

1)

평면형태

이 지점은 북궐도형 에는 모두 퇴칸구조에 칸과 엇 칸으로 표기돼 있고 경복

3

궁배치도 에는 칸과 엇 칸이 양쪽에 있는 것으로 표기돼 있다 실제 조사결과

2

.

북궐도형 의 퇴칸 지점에는 세장방형 적심이 아닌 말각방형 적심이 확인된다.

그림

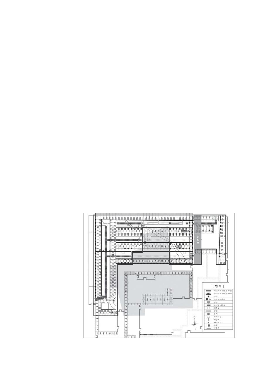
조사지역 유구 실측도와 측량도면 합성도

5.


background image



또한 일부 파괴되었지만 말각방형 적심 바깥으로 건물 경계를 이루는 기단기초시

설이 외행각과 외행각의 동행각으로 연결되고 있는 것으로 보아 경복궁배치도

와 동일한 구조로 판단된다.

소주방 남측 담장의 위치와 동서양쪽 끝 남북방향 행각의 칸수

2)

이 지점은 북궐도형 의 경우

구간으로 담장 표기가 없지만

경복궁배치

,

今無

도 에는 빈궁생물방과 상궁처소의 경계를 이루는 담장이 확인된다 실제 조사결

.

과에서도 경복궁배치도 와 동일한 담장유구가 확인되었으며 추가로 빈궁 생물

방 남측에서 동서방향의 담장유구가 확인되었다.

또한 소주방 동쪽 끝에 접해있는 남북방향 행각과 회광당의 서쪽에서 소주방

으로 연결되는 남북방향 행각의 칸수는 북궐도형 에는 칸

경복궁배치도 에

3 ,

는 칸으로 표기돼있는데 조사결과 칸으로 경복궁배치도 와 동일하다

4

4

.

회광당의

칸의 단차

3)

4

이 지점은 조사결과 회광당의 다른 적심보다 한 단 낮게 축조된 양상이 확인된다.

광원당

칸 퇴칸 전후열 적심의 단차

4)

4

이 지점은 후열의 초석받침돌을 한 단 더 쌓아 단으로 만들었는데 민가 건축에

2

,

그림

북궐도형 상의 유구 배치 모식도 문화재청

수록 도면 재정사

6.

(

2009

)


background image

05.

景福宮 興福殿 圈域

發掘調査結果

北闕圖形

』 ?

景福宮配置圖

比較

? 檢討



서 주로 보이는 툇마루와 유사한 구조에 해당한다.

북행각 남측의 동서방향 석축

5)

이 지점은 북궐도형 과 경복궁배치도 모두 확인되지 않는 시설로 발굴조사 결

과 확인되었다 앞서 언급한 바와 같이 흥복전 권역 북쪽과 남쪽의 해발 차이를

.

조정하기 위한 시설이다.

북행각 남측의 부속시설

6)

이 지점은 북궐도형 과 경복궁배치도 모두 확인되지 않은 시설로 발굴조사 결

과 확인되었다

규모로 사고석을 구획하고 내부에 사질토를 채워넣는데

. 2×2m

,

대형 도기가 박힌 채로 확인되는 것으로 보아 다양한 용도로 사용된 부속시설로

추정된다.

다경합의 위치와 측면 칸의 형태

7)

이 지점의 위치는 북궐도형 의 경우 광원당과 소주방 남쪽에 걸쳐 있고 경복궁

배치도 에는 광원당과 나란히 위치한 것으로 표기돼 있다 칸의 구조에서는 북

.

궐도형 의 경우 동서 양쪽 칸이 동일한 한 칸으로 구분돼 있는 반면 경복궁배치

도 에는 건물 남측이 모두 퇴칸 구조를 이루고 있다.

조사결과 다경합은 경복궁배치도 에 표기된 바와 같이 광원당과 나란하게

위치하고 남측은 모두 퇴칸 구조로 확인된다

,

.

다경합 동측의 추정 행랑

8)

이 지점은 북궐도형 과 경복궁배치도 에 각기 화계와 담장으로 표기돼 있다.

그러나 실제 조사결과 석축 상부로 다량의 기와가 주저앉은 채로 노출되었고 석

,

축 내부에서는 주칸거리

로 확인된다 이로 보아 이 시설은 흥복전

2.45×2.45m

.

역과 주변지역을 연결시켜주는 주 동선으로 행랑시설이 있었던 것으로 추정된다.

다경합 본채와 추정 행랑에 연결된 계단기초시설

9)

북궐도형 과 경복궁배치도 에는 계단시설은 별도로 표기돼 있지 않지만 조사

,

결과 다경합 남측과 북측 중앙에서 기 추정 행랑시설에서는 기가 확인된다

3 ,

2

.

외행각과 외행각 동편 행각 사이의 담장 배치

10)

이 지점의 담장 배치는 실제 조사 결과 경복궁배치도 와 거의 동일한 양상으로

확인된다.


background image



흥복전 서행각의 평면형태

11)

이 지점은 발굴조사가 진행되지 않았지만 경복궁배치도 에는 퇴칸으로 표기돼

있고 북궐도형 에는 한 칸으로 표기돼 있다

,

.

그림

발굴조사 결과

북궐도형

경복궁배치도 의 차이점 문화재청

수록 도면 재정사

7.

,

,

(

2009

)

』 『


background image

05.

景福宮 興福殿 圈域

發掘調査結果

北闕圖形

』 ?

景福宮配置圖

比較

? 檢討



맺 음 말

.

경복궁은 일제강점기 대부분 훼손된 이후 문화재청의 정비 ? 복원 계획에 따라

년부터 올해까지

개 권역에 대한 조사와 정비

1990

10

? 복원이 진행되었다 특히

.

본고에서 소개한 흥복전 권역 발굴조사를 끝으로 경복궁의 남북 중축선상에 위치

한 건물은 대부분 조사가 완료되었다.

흥복전 권역 발굴조사의 성과를 정리하면 다음과 같다 첫 번째는 흥복전 권

.

역의 구체적인 축조과정이 확인되었다는 점이다 층위조사를 통해 흥복전 권역의

.

구지형이 확인되었고 이러한 구지형의 수평조정을 위해 석축이 시설된다는 사실

,

을 알 수 있었다 이와 함께 축조과정의 선후 관계에서 암거형 배수로와 건물의

.

기초시설이 축조되는 양상이 명확히 확인되었다.

두 번째는 건물 복원을 위한 내부 기초시설의 세부적인 축조양상과 구조가

확인되었다는 점이다 특히 퇴칸 기초시설의 경우 전후열 초석 받침에서 단차가

.

확인되기도 하고 특별한 용도의 경우 한 단을 낮춰 축조하기도 한다 또한 행각

,

.

과 행각이 만나는 지점은 정확한 위치 선정을 하지 못한 결과 적심의 위치가 불규

칙하거나 적심의 정중앙에서 벗어난 지점에 초석 받침이 시설되는 양상이 확인

,

되기도 했다.

마지막으로 발굴조사 결과와 북궐도형

경복궁배치도 의 비교를 통해 향

,

』 『

후 흥복전 권역 복원의 기초자료를 확보할 수 있었다 조사결과

로 표기된

.

今無

구간은 경복궁배치도 가 실제 조사결과와 더 유사한 반면 이외의 공간은 북궐

도형 이 더 정확했다 따라서 흥복전 권역 복원 시에 이러한 점을 고려하여 진행

.

해야 할 것으로 생각된다.

이와 같이 경복궁 발굴조사는 경복궁의 본래 모습을 복원하기 위한 정확한

기준 자료를 제시해 오고 있다 향후 이러한 조사자료를 지속적으로 축적해나간

.

다면 경복궁 전체의 배수체계를 비롯해서 고종연간뿐만 아니라 선대 건물의 조

,

사연구도 진행될 수 있을 것으로 생각된다.


background image



참고문헌

.

朝鮮王朝實錄

.

承政院日記

.

宮闕志

.

日省錄

고려대학교박물관 소장

,

.

景福宮配置圖

국립문화재연구소

자문회의 자료 유인물

,

(

) , 2013.

景福宮 興福殿 周邊地域 發掘調査

자문회의 자료 유인물

,

(

) , 2012.

景福宮 興福殿 外行閣址 發掘調査

,

, 2008.

景福宮 興福殿址 發掘調査報告書

,

, 2006.

北闕圖形

김봉건

경복궁 복원에 관한 고찰

서울학연구 제

,

,

29 , 2007.

」 『

문화재청

, 景福宮 變遷査 上

?

, 2007.

복원 기본계획

,

, 2009.

景福宮

이강근

북궐도형해제

국립문화재연구소

,

,

,

, 2006.

北闕圖形

」 『

이혜원 고려대학교박물관 소장 경복궁배치도의 제작시기와 사료가치에 대한 연구

건축역

,

,

」 『

사연구 제

권 호

17

4 , 2008.

장순용

북궐도형의 건축적 표현방법 고찰

국립문화재연구소

,

,

,

, 2006.

北闕圖形

」 『

특히

을 대상으로 하여

,

-

- ,

崔仁華

景福宮 建物址

考古學的 硏究

積心

佂山大學校大學院 考

, 2008.

古學科 碩士學位 文


background image

05.

景福宮 興福殿 圈域

發掘調査結果

北闕圖形

』 ?

景福宮配置圖

比較

? 檢討



ABSTRACT

A Review of Gyeongbokgung Palace Heungbokjeon area excavation

result and Bukkwoldohyong ? Kyeongbokgung-Bachido

Oh, Dong-Sun / Kim, Tae-Min / Wi, Myeong-hwan / Lee, Yoon-hye

Purpose of this paper is suggesting consideration point of comparision with result of

excavacation Gyeongbokgung Palace Heungbokjeon area and Bukkwoldohyong ?

Gyeongbokgung-Bachido

to

restoration

of

this

area.

Gyeongbokgung

Palace

Heungbokjeon area is located between Chimjeon area and Hyangwonjeong district. And

this position is in a direct middle line of Gyeongbokgung Palace from south to north area.

During

the

Gojong

year

after

rebuilding

Gyeongbokgung

palace

by

Heungseondaewongun(1867), there were many involved article about Heungbokjeon area

in historical material; the Annals of the Joseon Dynasty, the daily records of royal

secretariat of Joseon Dynasty, Ilseongnok, etc. The main uses of building is not only the

king's private quarters but also visiting area for the foreign minister and the center of

performances.

As a result of excavation, we checked the most part of the structure-foundation

explained by historical materials and illustration included Heungbokjeon main palace

which were destroyed the greater part of the area by Japanese style garden.

Comparing excavation result with historical materials and illustrations, the area

signed‘Geum-moo(Not exist)’is similar with Gyeongbokgung-Bachido and other part of

the building is suitable for Bukkwoldohyong. In addition to comparison result, we verified

elevation differences between inside and outside of the building, and past topography

involved detail process of constructing, underdrain and drainage system. Besides we

investigated inside of the building; heating and cooking facility like Korean hypocaust and

fireplace as well as outside of the building; chimney, foundation of stairs and walls.

Keyword

Gyeongbokgung Palace, Heungbokjeon, Bukkwoldohyong ? ,

Gyeongbokgung-Bachido, Structure foundation, Underdrain


background image